ราคา 330000.00 บาท
รายละเอียด
ขนาดห้อง 53.0 ตารางเมตร
ราคาต่อตารางเมตร 6226.00 บาท/ตารางเมตร
โครงการ Ideo Mobi พญาไท

จรัส ศุภวิศิษฏ์
0862022172
2014-12-09 00:00:00.0
เลขที่ประกาศ: 114718
รายละเอียดเพิ่มเติม
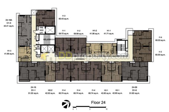
ขายดาวน์ Ideo Mobi Phayathai (เจ้าของขายเอง ไม่ผ่าน Agent ครับ) ห้องขนาด 52.74 sq.m. 2 ห้องนอน 2 ห้องน้ำ ชั้น 24 ห้องตำแหน่ง 24-09 เป็นทิศตะวันออกเฉียงเหนือมุม (ห้องมุม) ครับ ใกล้อนุสาวรีย์และสยาม เป็นโครงการระดับพรีเมียม
ขายดาวน์ 330,000 บาท ครับ ส่วนที่เหลืออีก 7,508,000 บาท ชำระหลังจากที่ตรวจเชคห้องเรียบร้อย และโอนห้องกับทางโครงการได้เลยครับ ช่วงโอนโครงการจะเป็นช่วง ปลายเดือนมิถุนายนครับ ตรวจห้องเสร็จเรียบร้อยแล้วถึงโอนเงินส่วนที่เหลือครับ สำหรับค่าส่วนกลางตารางเมตรละ 48 บาท/เดือน มี Facilities พร้อม เช่น ห้องอ่านหนังสือ ที่จอดรถ ฟิตเนท เป็นต้น
**เจ้าของขายเอง ไม่ผ่าน Agent ราคาไม่แพงครับ สามารถลดได้อีก โทรมาต่อรองกันได้ครับ** ผู้ที่สนใจติดต่อได้ที่เบอร์ 081-6040752 ครับ หรือเบอร์ 086-2022172 ได้เลยครับ

ภาพ Type ห้องครับ เป็น Type D1-6 : http://www.ideocondo.com/ideomobi/phayathai/images/unitplan/D1-6.png
อันนี้คือภาพ Floor Plan และตำแหน่งห้องนะครับ อยู่ตำแหน่งที่ 24-09(ห้องมุม) : http://www.ideocondo.com/ideomobi/EN/phayathai/images/floorplan/Fl_24.png

ตำแหน่งนี้วิวสวยครับ มองเห็นอนุสาวรีย์ชัยสมรภูมิ วิวไม่บล็อค
การเดินทางสะดวกสบายมากครับ สามารถลง BTS สถานีพญาไท ลงทางฝั่ง CP Tower แล้วเดินต่ออีกประมาณ 190 m ก็ถึงโครงการแล้วครับ นอกจากนี้ยังอยู่ใกล้ Airport Link สถานี พญาไท ห่างจากโครงการเพียง 320 m.
โครงการนี้ มี Max value ที่เปิดตลอด 24 hrs และยังมีระบบ Intelligent control ที่สามารถสั่งเปิดปิดอุปกรณ์ไฟฟ้าภายในห้องได้ เช่น แอร์ โทรทัศน์
ไม่ว่าเราจะอยู่ที่ไหนก้อตาม ผ่าน application บนมือถือหรือเเท็บเลท
คุณสมบัติ

รายละเอียดโครงการของประกาศนี้

HIGHLIGHT PROPERTY
ที่ตั้ง:
วันที่เริ่มโครงการ:
จำนวนอาคาร:
0
พื้นที่โครงการ:
ตร.วา
จำนวนชั้น:
ชั้น
จำนวนห้อง:
ห้อง
ชื่อบริษัทเจ้าของโครงการ:

เบอร์โทรโครงการ:

เว็บไซต์โครงการ:

รายละเอียดเพิ่มเติม:
ขายดาวน์คอนโดIdeo Mobi พญาไท 21.19 ตรม. - คอนโด ขายดาวน์
Ideo Mobi พญาไท

รายละเอียดอาคาร 0 อาคาร

รูปแบบห้อง 0 แบบ

รายชื่อประกาศขายหรือเช่าทั้งหมดของโครงการนี้ 80 ประกาศ

***ให้เช่า*** Ideo Mobi Payathai แต่งครบ วิวโล่ง 1 ห้องนอน 31 ตร.ม. วิวตึกใบหยก

เลขที่: 280771
2019-03-10 13:12:29.0
Add to wishlist

Ideo Mobi พญาไท

ขนาดพื้นที่ 31.0 ตารางเมตร

นรภัทร ทิชากรตระการ

0823502749

เช่า 20000.00 บาท

ขาย ไอดีโอ โมบิ พญาไท IDEO MOBI PHAYATHAI Studio 22 sqm.

เลขที่: 279941
2019-03-05 15:24:42.0
Add to wishlist

Ideo Mobi พญาไท

ขนาดพื้นที่ 22.0 ตารางเมตร

untpost property

0962854806

ขาย 4300000.00 บาท

ขายด่วนคอนโด ไอดีโอ โมบิ พญาไท 22 ตร.ม ห้องสตูดิโอ 1 ห้องน้ำ ตกแต่งครบ ราคา 4.3 ล้านบาท

เลขที่: 279651
2019-03-04 09:53:27.0
Add to wishlist

Ideo Mobi พญาไท

ขนาดพื้นที่ 22.0 ตารางเมตร

theassethubz theassethubz

0986655080

ขาย 4300000.00 บาท

คอนโด Ideo Mobi พญาไท คอนโดหรู 24 ชั้น กลางใจเมือง แขวงทุ่งพญาไท เขตราชเทวี กรุงเทพ 52.5 ตรม.

เลขที่: 268932
2019-01-04 18:25:00.0
Add to wishlist

Ideo Mobi พญาไท

ขนาดพื้นที่ 52.0 ตารางเมตร

Realtyone1 Realtyone1

0882753805

ขาย 8900000.00 บาท

คอนโด Ideo Mobi พญาไท คอนโดหรู 24 ชั้น กลางใจเมือง แขวงทุ่งพญาไท เขตราชเทวี กรุงเทพ 52.5 ตรม.

เลขที่: 254515
2018-10-09 18:43:49.0
Add to wishlist

Ideo Mobi พญาไท

ขนาดพื้นที่ 52.0 ตารางเมตร

Realtyone1 Realtyone1

0882753805

ขาย 10000000.00 บาท

(เช่า) FOR RENT IDEO MOBI PHAYATHAI / Studio / 22 Sqm.**17,000** Fully Furnished. High Floor. NEAR BTS PHAYATHAI

เลขที่: 219422
2017-12-17 01:16:48.0
Add to wishlist

Ideo Mobi พญาไท

ขนาดพื้นที่ 22.0 ตารางเมตร

Nuttapong Maneeakharanate

0933244757

เช่า 17000.00 บาท

Ideo Mobi Phayathai (Duplex) ขายราคาพิเศษสุดๆ - คอนโด ขายดาวน์

เลขที่: 114302
2015-03-24 00:00:00.0
Add to wishlist

Ideo Mobi พญาไท

ขนาดพื้นที่ 60.0 ตารางเมตร

ดับเบิ้ลยู ทู พร้อพเพอร์ตี้

0935792466

ขาย 9500000.00 บาท

ขายเท่าทุนคอนโด ideo mobi phayathai - คอนโด ขาย

เลขที่: 163630
2015-03-24 00:00:00.0
Add to wishlist

Ideo Mobi พญาไท

ขนาดพื้นที่ 42.0 ตารางเมตร

ธเนศ คหกิจไพศาล

0890453355

ขาย 8000000.00 บาท

ขายคอนโด Ideo Mobi Phyathai : 2 นอน 2 น้ำ - คอนโด ขาย

เลขที่: 159290
2015-03-19 00:00:00.0
Add to wishlist

Ideo Mobi พญาไท

ขนาดพื้นที่ 52.0 ตารางเมตร

Wanee Mahacharoenkeat

0898112800

ขาย 7950000.00 บาท

10000977 ขาย คอนโด 52.74 ตร.ม. ไอดีโอ โมบิ พญาไท ใกล้ BTS พญาไท 9 ล. - คอนโด ขาย

เลขที่: 167424
2015-03-18 00:00:00.0
Add to wishlist

Ideo Mobi พญาไท

ขนาดพื้นที่ 53.0 ตารางเมตร

บริษัท อธิพัชร์ พร็อพเพอร์ตี้ คอนซัลแตนท์ จำกัด

0815561999

ขาย 9000000.00 บาท

ขายไอดีโอ โมบิ พญา ไท 2 ห้องนอน ราคาถูก - คอนโด ขาย

เลขที่: 87023
2015-03-16 00:00:00.0
Add to wishlist

Ideo Mobi พญาไท

ขนาดพื้นที่ 43.0 ตารางเมตร

Pattanut seangthong

0874296464

ขาย 5200000.00 บาท

ขาย Ideo mobi phyathai - คอนโด ขาย

เลขที่: 101211
2015-03-16 00:00:00.0
Add to wishlist

Ideo Mobi พญาไท

ขนาดพื้นที่ 52.0 ตารางเมตร

พรรษมณฑ์ ธิติภัสสราวงศ์

0819115556

ขาย 8400000.00 บาท

ขายคอนโด Ideo Mobi พญาไท - คอนโด ขาย

เลขที่: 159809
2015-03-16 00:00:00.0
Add to wishlist

Ideo Mobi พญาไท

ขนาดพื้นที่ 52.0 ตารางเมตร

landhome1 .

0822464622

ขาย 7500000.00 บาท

ขายเท่าทุนคอนโด ideo mobi phayathai - คอนโด ขาย

เลขที่: 160725
2015-03-07 00:00:00.0
Add to wishlist

Ideo Mobi พญาไท

ขนาดพื้นที่ 52.0 ตารางเมตร

Pattanut seangthong

0874296464

ขาย 7950000.00 บาท

ขายดาวน์ IDEO MOBI Phayathai 3.05 ล้านบาท - คอนโด ขาย

เลขที่: 61099
2015-02-04 00:00:00.0
Add to wishlist

Ideo Mobi พญาไท

ขนาดพื้นที่ 21.0 ตารางเมตร

Mixmax Max

0897410475

ขาย 3050000.00 บาท

ขาย IDEO Mobi พญาไท Phayathai ห้อง Studio 21 ตรม ชั้นสูง เจ้าของขายเอง ด่วน!! - คอนโด ขาย

เลขที่: 94022
2015-02-04 00:00:00.0
Add to wishlist

Ideo Mobi พญาไท

ขนาดพื้นที่ 21.0 ตารางเมตร

กิตติ วงศ์ภิญ

0806275231

ขาย 3800000.00 บาท

IDEO MOBI PHAYATHAI 190เมตร จาก BTS สถานีพญาไท - คอนโด ขาย

เลขที่: 143501
2015-01-08 00:00:00.0
Add to wishlist

Ideo Mobi พญาไท

ขนาดพื้นที่ 31.0 ตารางเมตร

weenaththa Likitkom

0876789225

ขาย 4999999.00 บาท

ขายถูก IDEO MOBI พญาไท - คอนโด ขาย

เลขที่: 76578
2015-01-07 00:00:00.0
Add to wishlist

Ideo Mobi พญาไท

ขนาดพื้นที่ 31.0 ตารางเมตร

บุญมี ธม

0819443301

ขาย 4400000.00 บาท

ขายดาวน์ Ideo Mobi Phayathai ขนาด 52.74 sq.m. 2 ห้องนอน 2 ห้องน้ำ ชั้น 24 - คอนโด ขาย

เลขที่: 85659
2015-01-07 00:00:00.0
Add to wishlist

Ideo Mobi พญาไท

ขนาดพื้นที่ 53.0 ตารางเมตร

จรัส ศุภวิศิษฏ์

0862022172

ขาย 510000.00 บาท

ขายดาวน์ Ideo Mobi พญาไท ชั้น 21 - คอนโด ขายดาวน์

เลขที่: 70566
2015-01-06 00:00:00.0
Add to wishlist

Ideo Mobi พญาไท

ขนาดพื้นที่ 21.0 ตารางเมตร

บุญลิตา

0816874264

ขาย 565000.00 บาท

ขายคอนโด IDEO MOBI พญาไท ห้อง 41.5 ตรม - คอนโด ขาย

เลขที่: 69303
2015-01-05 00:00:00.0
Add to wishlist

Ideo Mobi พญาไท

ขนาดพื้นที่ 42.0 ตารางเมตร

สุริยนต์

ขาย 6850000.00 บาท

ขายดาวน์ IDEO MOBI พญาไท ห้องสตูดิโอ 21 ตร.ม. 3.15 ล้านบาท - คอนโด ขาย

เลขที่: 38123
2014-12-11 00:00:00.0
Add to wishlist

Ideo Mobi พญาไท

ขนาดพื้นที่ 21.0 ตารางเมตร

Pat Thana

0865226146

ขาย 3150000.00 บาท

ขายดาวน์ Ideo Mobi พญาไท ห้อง Studio ชั้น 17 ถูกมากก เจ้าของขายเอง - คอนโด ขายดาวน์

เลขที่: 44175
2014-12-11 00:00:00.0
Add to wishlist

Ideo Mobi พญาไท

ขนาดพื้นที่ 21.0 ตารางเมตร

kanpicha P.

0819768039

ขาย 544650.00 บาท

ขายคอนโด Ideo mobi พญาไท - คอนโด ขาย

เลขที่: 53665
2014-12-11 00:00:00.0
Add to wishlist

Ideo Mobi พญาไท

ขนาดพื้นที่ 30.0 ตารางเมตร

ประชุมพร ศรีสุวรรณกาฬ

0815827099

ขาย 4800000.00 บาท

ขายบัตส่วนลดคอนโดติดรถไฟฟ้า - คอนโด ขาย

เลขที่: 59415
2014-12-09 00:00:00.0
Add to wishlist

Ideo Mobi พญาไท

ขนาดพื้นที่ 21.0 ตารางเมตร

jakkapad

0847729949

ขาย 20000.00 บาท

ideo mobi พญาไท - คอนโด ขาย

เลขที่: 110907
2014-12-09 00:00:00.0
Add to wishlist

Ideo Mobi พญาไท

ขนาดพื้นที่ 21.0 ตารางเมตร

เอื้อนมาศ โยบรรยงค์

0847529074

ขาย 3650000.00 บาท

ideo mobi phayathai ชั้น 24 (บนสุด) 2 ห้องนอน 2 ห้องน้ำ 52 ตรม. - คอนโด ขายดาวน์

เลขที่: 119415
2014-12-09 00:00:00.0
Add to wishlist

Ideo Mobi พญาไท

ขนาดพื้นที่ 52.0 ตารางเมตร

อัมพร วิรุฬหสกุล

0839518849

ขาย 400000.00 บาท

ขายideo mobi พญาไท - คอนโด ขาย

เลขที่: 106269
2014-12-08 00:00:00.0
Add to wishlist

Ideo Mobi พญาไท

ขนาดพื้นที่ 52.0 ตารางเมตร

watcharadach monthonjarun

0918780898

ขาย 7400000.00 บาท

ขายคอนโด ไอดิโอ โมบิ พญาไท 2 ห้องนอน - คอนโด ขาย

เลขที่: 117749
2014-12-08 00:00:00.0
Add to wishlist

Ideo Mobi พญาไท

ขนาดพื้นที่ 52.0 ตารางเมตร

วาสนา สมใจนึก

0863931423

ขาย 8500000.00 บาท

ขาย ideo mobi พญาไท - คอนโด ขาย

เลขที่: 157617
2014-12-06 00:00:00.0
Add to wishlist

Ideo Mobi พญาไท

ขนาดพื้นที่ 21.0 ตารางเมตร

จิระพันธ์ สุขขี

0864416830

ขาย 3800000.00 บาท

ขายคอนโด Ideo Mobi พญาไท - คอนโด ขาย

เลขที่: 119313
2014-11-29 00:00:00.0
Add to wishlist

Ideo Mobi พญาไท

ขนาดพื้นที่ 52.0 ตารางเมตร

landhome1 .

0822464622

ขาย 7500000.00 บาท

คอนโดเช่า Ideo Mobi พญาไท BTS พญาไท ชั้น 22

เลขที่: 156614
2014-11-25 12:06:00.0
Add to wishlist

Ideo Mobi พญาไท

ขนาดพื้นที่ 50.0 ตารางเมตร

M2360467

0859777729

ขาย 26000.00 บาท

ขายคอนโด Ideo Mobi พญาไท

เลขที่: 120557
2014-11-20 12:22:00.0
Add to wishlist

Ideo Mobi พญาไท

ขนาดพื้นที่ 51.0 ตารางเมตร

landhome3

0979685589

ขาย 7500000.00 บาท

ให้เช่า คอนโดมิเนียม Ideo Mobi พญาไท

เลขที่: 108878
2014-11-19 11:24:00.0
Add to wishlist

Ideo Mobi พญาไท

ขนาดพื้นที่ 21.0 ตารางเมตร

pprealestate01

0935205693, 0927322459, 021174087

ขาย 15000.00 บาท

ขายคอนโด Ideo Mobi พญาไท

เลขที่: 153222
2014-11-13 14:43:00.0
Add to wishlist

Ideo Mobi พญาไท

ขนาดพื้นที่ ไม่ได้ระบุ

landhome1

0979685589

ขาย 7500000.00 บาท

ขาย Ideo Mobi Phayatai ชั้น 24, 2 ห้องนอน 2ห้องน้ำ - คอนโด ขาย

เลขที่: 76586
2014-11-07 00:00:00.0
Add to wishlist

Ideo Mobi พญาไท

ขนาดพื้นที่ 52.0 ตารางเมตร

จิรโรจน์ วิรุฬหสกุล

0818864840

ขาย 7940000.00 บาท

ขายดาวน์ ideo mobi phayathai 2 ห้องนอน 2ห้องน้ำ 52 ตรม. ชั้น 24 - คอนโด ขายดาวน์

เลขที่: 78078
2014-11-07 00:00:00.0
Add to wishlist

Ideo Mobi พญาไท

ขนาดพื้นที่ 52.0 ตารางเมตร

จิรโรจน์ วิรุฬหสกุล

0818864840

ขาย 500000.00 บาท

ขายดาวน์ ideo mobi phayathai ชั้น 24 พื้นที่ 51.53 ตรม. - คอนโด ขายดาวน์

เลขที่: 82349
2014-11-07 00:00:00.0
Add to wishlist

Ideo Mobi พญาไท

ขนาดพื้นที่ 52.0 ตารางเมตร

จิรโรจน์ วิรุฬหสกุล

0818864840

ขาย 500000.00 บาท

ขายคอนโด Ideo Mobi พญาไท - คอนโด ขาย

เลขที่: 119647
2014-11-03 00:00:00.0
Add to wishlist

Ideo Mobi พญาไท

ขนาดพื้นที่ 52.0 ตารางเมตร

landhome3 com

0822464622

ขาย 7500000.00 บาท

04-CC-57151 Ideo Mobi Phayathai For Sale and Rent - คอนโด ขาย

เลขที่: 142948
2014-10-30 00:00:00.0
Add to wishlist

Ideo Mobi พญาไท

ขนาดพื้นที่ 32.0 ตารางเมตร

Joy (จอย)

092-504-5544

ขาย 5400000.00 บาท

คอนโดให้เช่า IDEO Mobi Payathai

เลขที่: 137597
2014-10-28 14:13:00.0
Add to wishlist

Ideo Mobi พญาไท

ขนาดพื้นที่ 31.0 ตารางเมตร

ณภา

0863680491

เช่า 45000.00 บาท

ให้เช่าคอนโด IDEO Mobi พญาไท สุดหรู

เลขที่: 137666
2014-10-28 14:13:00.0
Add to wishlist

Ideo Mobi พญาไท

ขนาดพื้นที่ ไม่ได้ระบุ

ณภา

0863680491

ขาย 22000.00 บาท

ขายคอนโด ไอดีโอ โมบิ พญาไท 1 ห้องนอน 4.65 ล้าน - คอนโด ขาย

เลขที่: 97227
2014-10-12 00:00:00.0
Add to wishlist

Ideo Mobi พญาไท

ขนาดพื้นที่ 30.0 ตารางเมตร

Pattanut seangthong

0874296464

ขาย 5250000.00 บาท

ให้เช่าคอนโดโครงการ Ideo Mobi พญาไท - 30000 ต่อเดือน ติดต่อคุณ Lalitkan Lalitkan

เลขที่: 142646
2014-10-11 10:28:24.0
Add to wishlist

Ideo Mobi พญาไท

ขนาดพื้นที่ 42.0 ตารางเมตร

Lalitkan Lalitkan

0964294789, 0823224555, 0922965645, 021174443

เช่า 30000.00 บาท

Sale-Ideo Mobi Phayathai Studio 21 Sq.m. - คอนโด ขาย

เลขที่: 48509
2014-09-20 00:00:00.0
Add to wishlist

Ideo Mobi พญาไท

ขนาดพื้นที่ 21.0 ตารางเมตร

Apiwat Ph.

0895073140

ขาย 3200000.00 บาท

คอนโด IDEO MOBI พญาไท ติดBTS 5.25ล้าน

เลขที่: 123937
2014-09-12 10:52:00.0
Add to wishlist

Ideo Mobi พญาไท

ขนาดพื้นที่ ไม่ได้ระบุ

สมาชิก 1603599

0815599449

ขาย 5250000.00 บาท

คอนโด IDEO MOBI PHAYATHAI ชั้น9 เนื้อที่ 52.74ตรม.พร้อมชุดครัวบิ้วอิน - คอนโด ขาย

เลขที่: 90352
2014-09-08 00:00:00.0
Add to wishlist

Ideo Mobi พญาไท

ขนาดพื้นที่ 53.0 ตารางเมตร

ชณิตา เตชะเสน

09-1072-1112

ขาย 7800000.00 บาท

ขายไอด๊โอ โมบิ พญาไท (แต่งครบพร้อมเข้าอยู่) - คอนโด ขาย

เลขที่: 107158
2014-09-08 00:00:00.0
Add to wishlist

Ideo Mobi พญาไท

ขนาดพื้นที่ 21.0 ตารางเมตร

Pattanut seangthong

0874296464

ขาย 3670000.00 บาท

ให้เช่า คอนโด Ideo Mobi พญาไท 43 ตรม 2 นอน ห้องสวย พร้อมอยู่ ไกล้ BTS พญาไท ่

เลขที่: 123341
2014-09-02 08:07:00.0
Add to wishlist

Ideo Mobi พญาไท

ขนาดพื้นที่ 43.0 ตารางเมตร

antzpammie

0924241446, 0914154669

เช่า 35000.00 บาท

ขายคอนโด Ideo Mobi พญาไท - คอนโด ขาย

เลขที่: 118921
2014-08-24 00:00:00.0
Add to wishlist

Ideo Mobi พญาไท

ขนาดพื้นที่ 52.0 ตารางเมตร

landhome3 com

0822464622

ขาย 7500000.00 บาท

ขายสตู ไอดีโอ โมบิ พญาไท 3.5 ลบ!! - คอนโด ขาย

เลขที่: 106738
2014-08-19 00:00:00.0
Add to wishlist

Ideo Mobi พญาไท

ขนาดพื้นที่ 21.0 ตารางเมตร

ส้มโอ NaJa

0891061991

ขาย 3500000.00 บาท

คอนโดมิเนียม ideo mobi พญาไท พื้นที่ 52.8ตรม

เลขที่: 129950
2014-07-31 14:52:00.0
Add to wishlist

Ideo Mobi พญาไท

ขนาดพื้นที่ 53.0 ตารางเมตร

bannayoo

0818390860

ขาย 8500000.00 บาท

ขายคอนโด ไอดีโอ โมบิ พญาไท (ideo mobi phayathai) - คอนโด ขาย

เลขที่: 62191
2014-07-25 00:00:00.0
Add to wishlist

Ideo Mobi พญาไท

ขนาดพื้นที่ 30.0 ตารางเมตร

ณัฏฐา รัตวิวัฒนาพงศ์

0864766389

ขาย 4800000.00 บาท

ขายคอนโด IDEO MOBI PHAYATHAI - คอนโด ขาย

เลขที่: 87009
2014-07-16 00:00:00.0
Add to wishlist

Ideo Mobi พญาไท

ขนาดพื้นที่ 60.0 ตารางเมตร

Match Property(Thailand) Co.,Ltd.

0814542289

ขาย 9400000.00 บาท

ขายคอนโด IDEO MOBI PHAYATHAI - คอนโด ขาย

เลขที่: 87011
2014-07-16 00:00:00.0
Add to wishlist

Ideo Mobi พญาไท

ขนาดพื้นที่ 42.0 ตารางเมตร

Match Property(Thailand) Co.,Ltd.

0814542289

ขาย 6070000.00 บาท

ขายคอนโด IDEO MOBI PHAYATHAI - คอนโด ขาย

เลขที่: 87013
2014-07-16 00:00:00.0
Add to wishlist

Ideo Mobi พญาไท

ขนาดพื้นที่ 52.0 ตารางเมตร

Match Property(Thailand) Co.,Ltd.

0814542289

ขาย 7480000.00 บาท

ขายคอนโด IDEO MOBI PHAYATHAI - คอนโด ขาย

เลขที่: 87014
2014-07-16 00:00:00.0
Add to wishlist

Ideo Mobi พญาไท

ขนาดพื้นที่ 42.0 ตารางเมตร

Match Property(Thailand) Co.,Ltd.

0814542289

ขาย 6190000.00 บาท

ขายคอนโด IDEO MOBI PHAYATHAI - คอนโด ขาย

เลขที่: 87017
2014-07-16 00:00:00.0
Add to wishlist

Ideo Mobi พญาไท

ขนาดพื้นที่ 30.0 ตารางเมตร

Match Property(Thailand) Co.,Ltd.

0814542289

ขาย 4590000.00 บาท

ขายคอนโด IDEO MOBI PHAYATHAI - คอนโด ขาย

เลขที่: 87018
2014-07-16 00:00:00.0
Add to wishlist

Ideo Mobi พญาไท

ขนาดพื้นที่ 21.0 ตารางเมตร

Match Property(Thailand) Co.,Ltd.

0814542289

ขาย 3040000.00 บาท

ขายคอนโด IDEO MOBI PHAYATHAI - คอนโด ขาย

เลขที่: 90344
2014-07-16 00:00:00.0
Add to wishlist

Ideo Mobi พญาไท

ขนาดพื้นที่ 21.0 ตารางเมตร

Match Property(Thailand) Co.,Ltd.

0922674426

ขาย 2930000.00 บาท

ขายคอนโด IDEO MOBI PHAYATHAI 2 ห้องนอน 1ห้องน้ำ - คอนโด ขาย

เลขที่: 91391
2014-07-16 00:00:00.0
Add to wishlist

Ideo Mobi พญาไท

ขนาดพื้นที่ 43.0 ตารางเมตร

Match Property(Thailand) Co.,Ltd.

0922674426

ขาย 6250000.00 บาท

ขายดาวน์ก่อนโอน Ideo Mobi Phrayathai ใกล้BTS พญาไท - คอนโด ขายดาวน์

เลขที่: 91383
2014-06-11 00:00:00.0
Add to wishlist

Ideo Mobi พญาไท

ขนาดพื้นที่ 52.0 ตารางเมตร

Wanee Mahacharoenkeat

0898112800

ขาย 7850000.00 บาท

Ideo Mobi Phayathai (Duplex) ขายราคาพิเศษสุดๆ - คอนโด ขายดาวน์

เลขที่: 114304
2014-06-10 00:00:00.0
Add to wishlist

Ideo Mobi พญาไท

ขนาดพื้นที่ 60.0 ตารางเมตร

ดับเบิ้ลยู ทู พร้อพเพอร์ตี้

0935792466

ขาย 9500000.00 บาท

ขายดาวน์ คอนโดไอดิโอ โมบิิพญาไท ราคาถูก ติดบีทีเอส เพียง 100 ม. - คอนโด ขาย

เลขที่: 66440
2014-06-08 00:00:00.0
Add to wishlist

Ideo Mobi พญาไท

ขนาดพื้นที่ 30.0 ตารางเมตร

อัครวัฒน์ สุพรรณพิทักษ์

0898375545

ขาย 949000.00 บาท

Sell IDEO MOBI พญาไทStudio 21.56 ตรม ทิศตะวันออก ชั้น 14

เลขที่: 112213
2014-06-04 01:12:00.0
Add to wishlist

Ideo Mobi พญาไท

ขนาดพื้นที่ 21.0 ตารางเมตร

get

0803000060

ขาย 3000000.00 บาท

คอนโดมิเนียม Ideo Mobi พญาไท

เลขที่: 107914
2014-06-01 19:01:00.0
Add to wishlist

Ideo Mobi พญาไท

ขนาดพื้นที่ 21.0 ตารางเมตร

0864416830, 0899079487

ขาย 15000.00 บาท

ห้องสตูดิโอ Ideo Mobi พญาไทชั้น 14 วิวดี ใหม่เอี่ยม

เลขที่: 110301
2014-06-01 17:39:00.0
Add to wishlist

Ideo Mobi พญาไท

ขนาดพื้นที่ 21.0 ตารางเมตร

wipada9006

0861664661

ขาย 3950000.00 บาท

ideo mobi พญาไท - คอนโด ขาย

เลขที่: 110908
2014-05-22 00:00:00.0
Add to wishlist

Ideo Mobi พญาไท

ขนาดพื้นที่ 21.0 ตารางเมตร

เอื้อนมาศ โยบรรยงค์

0847529074

ขาย 3650000.00 บาท

ด่วนคอนโด IDEO MOBI พญาไท ถูกมากๆ ห้องอยู่ทางทิศเหนือ

เลขที่: 60893
2014-05-13 11:10:00.0
Add to wishlist

Ideo Mobi พญาไท

ขนาดพื้นที่ 30.0 ตารางเมตร

คุณปริญญ์

089-8375545

ขาย 4700000.00 บาท

ห้องไม่ร้อน วิวไม่บัง Ideo Mobi พญาไท 30 ตรม.

เลขที่: 79780
2014-04-17 17:45:00.0
Add to wishlist

Ideo Mobi พญาไท

ขนาดพื้นที่ 30.0 ตารางเมตร

hanhyera

0815655464

ขาย 5000000.00 บาท

Ideo Mobi พญาไท

เลขที่: 88229
2014-03-28 10:27:00.0
Add to wishlist

Ideo Mobi พญาไท

ขนาดพื้นที่ ไม่ได้ระบุ

Chetsada

0939255440

ขาย 8108000.00 บาท

ขายดาวน์ คอนโดไอดิโอ โมบิิพญาไท ราคาถูก ติดบีทีเอส เพียง 100 ม. - คอนโด ขาย

เลขที่: 66439
2014-03-26 00:00:00.0
Add to wishlist

Ideo Mobi พญาไท

ขนาดพื้นที่ 30.0 ตารางเมตร

อัครวัฒน์ สุพรรณพิทักษ์

0898375545

ขาย 956500.00 บาท

ขายดาวน์ Ideo Mobi พญาไท Studio 21.56 ตรม ทิศตะวันออก ชั้น 14 - คอนโด ขาย

เลขที่: 73031
2014-03-25 00:00:00.0
Add to wishlist

Ideo Mobi พญาไท

ขนาดพื้นที่ 22.0 ตารางเมตร

อลงกต เซี่ยงเห็น

0803000060

ขาย 585000.00 บาท
HIGHLIGHT PROPERTY
รายการประกาศที่ดูล่าสุด (Recent Advertise List)
ขายดาวน์ Ideo Mobi Phayathai 330,000 บาท (เจ้าของขายเอง ไม่ผ่าน Agent ครับ) ห้องขนาด 52.74 sq.m. 2 ห้องนอน 2 ห้องน้ำ - คอนโด ขายดาวน์
ขาย 330000.00 บาท
HQ Thonglor ห้องแรร์ไอเท็ม ราคาดี ห้องมุม เป็นส่วนตัว 2 ห้องนอน เฟอร์นิเจอร์ครบ ใกล้ BTS ทองหล่อ
เช่า 45000.00 บาท
ให้เช่าคอนโด ในโครงการ The Room สาทร-เซนต์หลุยส์ ใกล้รถไฟฟ้า BTS สุรศักดิ์ 35 ตรม. ชั้น 10
เช่า 28000.00 บาท
ขายคอนโด The Alcove Sukhumvit 49 - 1ห้องนอน 42 ตรม. ราคา 4.7 ล้าน
ขาย 4900000.00 บาท
=!!= ให้เช่าคอนโด D Condo Campus Resort ราชพฤกษ์ - จรัญ 13 (( 8000 ต่อเดือน )) เฟอร์นิเจอร์ครบ
เช่า 8000.00 บาท
ให้เช่าคอนโดมิเนียม ห้องใหม่ เดอะ เบสท์ สุขุมวิท77
ขาย 14000.00 บาท
ให้เช่า Apple Condo ใกล้ BTS แบริ่ง เฟอร์ Build in พร้อมเข้าอยู่
เช่า 11000.00 บาท
ให้เช่า คอนโด CFR123 600 เมตรจากรถไฟฟ้าเพลินจิตถนนวิทยุ ใจกลางย่านธุรกิจ ออล ซีซั่น แมนชั่น คอนโดมิเนียม 178.14 ตรม.
เช่า 90000.00 บาท
ให้เช่า Bright Sukhumvit 24 1ห้องนอน 70 ตรม. ใกล้ BTS พร้อมพงษ์
เช่า 55000.00 บาท
ให้เช่าคอนโด โซซิโอ เรฟเฟอเรนซ์ 61 (SOCIO Reference Sukhumvit 61) คอนโดมิเนียมหรู
ขาย 28000.00 บาท
clear